
55,1 a 61,6 m² (Superficie construída)
2 - 3 Dormitorios
1 - 2 Baños
Cocinas Integradas
Paseo Norte
Descubre un proyecto único con 123 casas tipo townhouse, pensado para familias que quieren más: más comodidad, más conexión y más vida en familia.
Casas de 2 y 3 dormitorios, con superficies desde 55,1 m² hasta 61,6 m², diseñadas con cocina integrada al comedor, ideal para compartir momentos inolvidables.
Un entorno familiar con amplios paseos peatonales, perfectos para caminar, relajarse y disfrutar. ¡Aquí los autos se quedan en la calle interior, y tú ganas más espacios para vivir!
Ubicado en Valle Grande, Lampa, a minutos de la futura estación Tren Santiago–Batuco. Vive en un sector que no para de crecer, con todo lo que necesitas cerca: colegios, comercio, servicios y excelente conectividad. Proyecto ideal para vivir. Entorno familiar y tranquilo.
Modelos de Casas
Te presentamos nuestros 3 modelos de casas tipo townhouse, diseñadas para la vida familiar de hoy.
Con 2 y 3 dormitorios y superficies desde 55,1 m² hasta 61,6 m², ofrecen espacios cómodos y funcionales con cocina integrada al comedor.
Disfruta de un entorno tranquilo con áreas verdes y paseos peatonales ideales para compartir y relajarte.
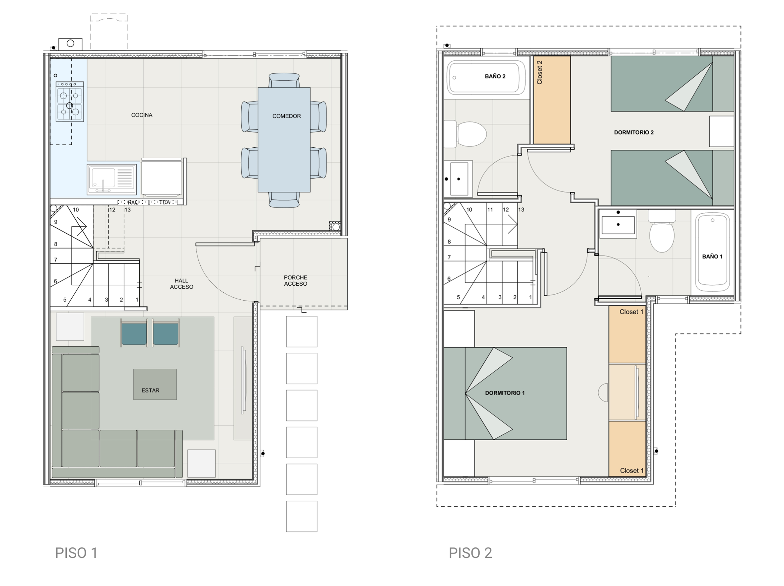
Modelo 55
• 3 dormitorios
• 1 baño
• Piso cerámica en primer piso y baño
• Fotolaminado en segundo piso
• Cocina integrada al comedor
Superficie construida: 55,1 m² aprox.
Desde UF 2.879*
*Precio incluye dcto. Casa N° 29
Cotiza
Terminaciones
- Lavaplatos de acero inoxidable.
- Mueble base de melamina.
- Cocina integrada al comedor y equipada con encimera, campana y horno.
Espacios comunes
Zona piscina y picnic
Circuito de patinaje y bicicletas
Pérgola
Juegos infantiles
Entorno
Estado del Proyecto
Queremos ayudarte
En Trayecta queremos resolver todas tus dudas para que encuentres la mejor opción de inversión. Contáctanos y conoce más sobre el proyecto Paseo Norte y sus ventajas.
Ejecutiva de Ventas
Francesca Pinochet
Ejecutiva de Ventas
Crisnelsy Mata
Dirección del Proyecto
Calle Blanca Estela Oriente N°629
Sala de Ventas
Av. La Montaña Norte 3650, Valle Grande, Lampa
Horario de Atención
Lunes a domingo, de 10:30 a 14:00 hrs. y de 15:00 a 19:00 hrs.
